Desain Rumah Minimalis Nuansa Natural Yang Untuk Keluarga Tercinta


Homeshabby.com - Rumah minimalis dengan nuansa natural ini dapat menjadi inspirasi bagi anda yang sedang merencanakan atau ingin membangun rumah impian. Rumah ini memiliki desain yang nyaman di gunakan karena dilengkapi dengan fasilitas yang lengkap. Anda dapat memaksimalkan ruangan rumah ini agar dapat memberikan kenyamanan bagi anggota keluarga tercinta. Untuk lebih detailnya anda dapat melihat di bawah ini !!



Fasad Rumah

Tampilan fasad rumah yang menghadirkan perpaduan warna abu abu dan coklat alami dapat memberikan kesan rumah nampak alami. Untuk kesan coklat ini di hadirkan pada bata ekspos yang di letakkan pada dinding fasad rumah. Dilengkapi dengan pintu dan jendela kaca dengan ukuran besar sehingga dapat memaksimalkan pencahayaan yang masuk ke dalam rumah. 



Rumah Tampak Atas


Untuk tampilan rumah nampak atas terlihat bangunan rumah yang menggunakan garis bangunan  yang simpel. Atap rumah ini menggunakan desain atap pelana sehingga akan lebih rapi. Kelebihan atap pelana lainnya adalah kemampuan menyerap panas yang baik. Dengan kemampuan seperti ini, tidak heran jika struktur pelana sangat populer di Indonesia yang notabene adalah sebuah negara tropis.



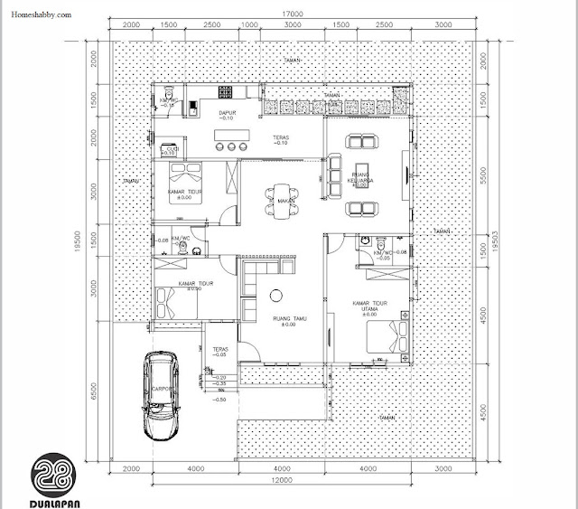
Pembagian Ruangan 

Untuk pembagian ruangan dari rumah ini terdiri dari :

- Carport

- Ruang Tamu 

- Ruang Tengah 

- Ruang Keluarga

- Ruang Makan + Dapur

- 3 Kamar Tidur 

- 3 Kamar Mandi 



Denah Rumah 


Untuk detail ukuran dari ruangan rumah ini dapat anda liat pada denah rumah di atas. Anda dapat mengatur ruangan rumah dengan sedemikian rupa agar tampilan nampak rapi dan luas. 







Semoga artikel ini bermanfaat ya bagi anda yang sedang mencari inspirasi desain dan denah rumah.

Semoga anda dimudahkan rezekinya dalam membangun rumah idaman.
Jangan lupa dibagikan ke kerabat dan keluarga anda agar bermanfaat bagi yang lainnya.




Penulis  : Dwi
Editor    : Munawaroh
Sumber : dualapan desain rumah





Website Homeshabby.com adalah website yang menyajikan berbagai denah dan desain rumah minimalis modern di Indonesia. Harapan kami Homeshabby.com menjadi website nomor 1 mengenai kumpulan desain dan denah rumah terlengkap di Indonesia. Selain denah dan desain rumah, Homeshabby.com juga memberikan inspirasi interior dan eksterior dekorasi rumah modern.