Homeshabby.com - Rumah minimalis dengan ukuran 9 x 15 M ini memiliki tampilan yang modern dan minimalis sehingga cocok bagi anda yang menyukai kesan rapi dan luas. Dengan penataan dan desain yang tepat akan membuat rumah ukuran kecil nampak lebih besar. Rumah ini juga dilengkapi dengan fasilitas yang lengkap sehingga dapat memberikan kenyamanan bagi pemilik rumah. Jika anda sedang mencari inspirasi desain dan denah rumah dengan desain minimalis maka bisa mengaplikasikan desain ini.
Tampilan Fasad Rumah
Tampilan fasad rumah yang nampak rapi dan bersih dapat memberikan kesan rumah nampak modern. Rumah ini memadukan warna bangunan putih dan hitam sehingga memang dapat memberikan kesan rumah nampak elegan. Dilengkapi dengan pintu material kayu dan juga jendela kaca dengan bingkai material kayu dapat memberikan kesan nampak kokoh.
Untuk desain atap rumah ini menggunakan atap model pelana berwarna abu gelap sehingga memang dapat memberikan kesan rumah modern. Atap pelana ini memang banyak memiliki kelebihan sehingga banyak di gunakan untuk rumah minimalis modern. Selain dapat memaksimalkan air hujan atap pelana juga dapat membuat kesan rumah lebih adem karena dapat menyerap panas secara maksimal.
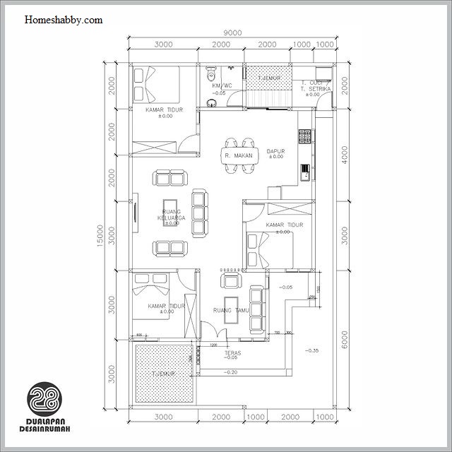
Untuk pembagian ruangan dari rumah ukuran 9 x 15 M ini terdiri dari :
- Taman
- Carport
- Ruang Tamu
- Ruang Keluarga
- Ruang Makan & Dapur
- Kamar Mandi
- 3 Kamar Tidur
- Taman dengan ukuran 3 x 3 M
- Carport dengan ukuran 6 x 6 M
- Ruang Tamu dengan ukuran 3 x 3 M
- Ruang Keluarga dengan ukuran 5 x 5 M
- Ruang Makan & Dapur dengan ukuran 5 x 4 M
- Kamar Mandi dengan ukuran 2 x 2 M
- 3 Kamar Tidur dengan ukuran 3 x 3 M
Semoga artikel ini bermanfaat ya bagi anda yang sedang mencari inspirasi desain dan denah rumah.
Semoga anda dimudahkan rezekinya dalam membangun rumah idaman.
Jangan lupa dibagikan ke kerabat dan keluarga anda agar bermanfaat bagi yang lainnya.
Penulis : Dwi
Editor : Munawaroh
Sumber : dualapan desain rumah
Website Homeshabby.com adalah website yang menyajikan berbagai denah dan desain rumah minimalis modern di Indonesia. Harapan kami Homeshabby.com menjadi website nomor 1 mengenai kumpulan desain dan denah rumah terlengkap di Indonesia. Selain denah dan desain rumah, Homeshabby.com juga memberikan inspirasi interior dan eksterior dekorasi rumah modern.




