Desain Rumah Ukuran 7 x 14.5 Meter Menggunakan Atap Limasan Interior Nyaman

Desain Rumah Ukuran 7 x 14.5 Meter Menggunakan Atap Limasan Interior Nyaman

Homeshhabby.com -- Mendesain rumah dengan rapi akan menghasilkan hunian nyaman untuk ditinggali bersama keluarga tercinta. Mengusung tema elegan minimalis, desain rumah kali ini culup dominan warna gelapa yang dikombinasikan warna abu-abu sehingga tampak modern. Interiornya pun cukup luas dengan 2 kamar tidur dan kelengkapan ruang lain. Simak detail dan pembahasannya pada Desain Rumah Ukuran 7 x 14.5 Meter Menggunakan Atap Limasan Interior Nyaman di bawah ini:


 

Desain fasad rumah dengan pagar


Inilah tampilan fasad rumah 7 x 14.5 meter dengan pagar batua alam yang dikombinasikan batu bata biasa. Lain untuk pagar akses dipilihkan material besi putih minimalis dengan model sliding. Aksen cantik pun terlihat dari adanya taman luar pagar yang minimalis fungsional untuk resapan dan penghijauan di sekeliling rumah. Rumah yang lengkap dengan pagar seperti ini tentunya dapat memberikan efek privasi saat berkegiatan di halaman rumah.


Desain fasad rumah tanpa pagar


Untuk opsi lainnya, rumah yang di desain tanpa pagara akan terlihat terbuka dan luas seperti ini. Eksteiror yang cantik dengan satu pilar batu alam memberikan kesan kokoh yang kuat dan natural. Elemen pintu jendela tetap minimalis dengan kusen putih beserta lampu eskterior warma light di dinding teras yang elegan. Tambahkan efek dekorasi berupa ventilasi mati di bagian dinding atas teras seperti yang terlihat.


Model atap rumah 


Dengan ukuran 7 x 14.5 meter, rumah ini menggunakan model atap limasan genteng flat beton yang elegan dan kuat. Banyak kelebihan dari atap limasan yang bisa jadi pilihan, salah satunya kemiringan yang idealis akan membuat air hujan langsung turun ke tanah. Lain area carport pada rumah ini yang menggunakan dak beton dengan kombinasikan materai kaca untuk dekorasi yang lebih modern. 


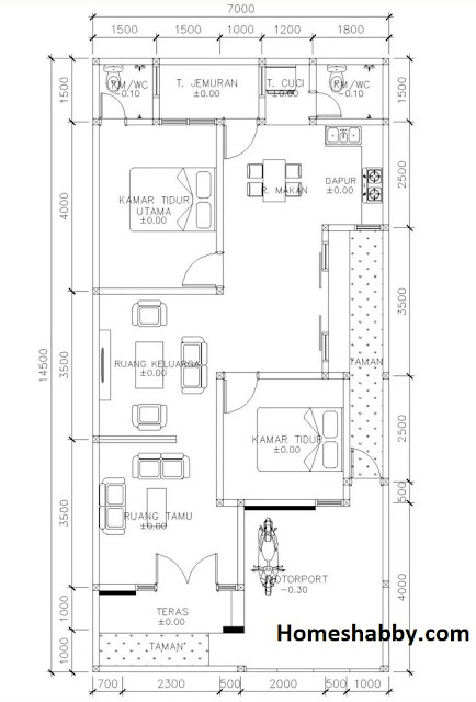
Detail ukuran rumah



Pembagian denah pada ruang di rumah ini adalah sebagai berikut:

- Taman rumah ukuran 3 x 1 meter
- Teras ukuran 3.5 x 1 meter
- Carport ukuran 3.5 x 4 meter
- Ruang tamu ukuran 3.5 x 3.5 meter
- Ruang keluarga ukuran 3.5 x 3.5 meter
- Kamar tidur bagian depan ukuran 3 x 2.5 meter
- Taman samping rumah ukurann 1 x 6.5 meter
- Kamar tidur utama ukuran 3 x 4 meter dengan kamar mandi dalam ukuran 1.5 x 1.5 meter
- Dapur dan ruang makan ukuran 2.5 x 4  meter
- Kamar mandi ukuran 1.5 x 1.8 meter
- Laundry room ukuran 1.2 x 1.5 meter
- Ruang jemur baju ukuran 2.5 x 1.5 meter




Bagi anda yang menginginkan inspirasi desain dan denah rumah mulai sederhana hingga modern. Silahkan tinggalkan pesan dan komentar anda di facebook Rumah Shabby Minimalis.



Semoga artikel ini bermanfaat ya bagi anda yang sedang mencari inspirasi desain dan denah rumah.
Semoga anda dimudahkan rezekinya dalam membangun rumah idaman.
Jangan lupa dibagikan ke kerabat dan keluarga anda agar bermanfaat bagi yang lainnya.



Penulis  : Lynda
Editor    : Munawaroh
Sumber : Berbagai Sumber



Website Homeshabby.com adalah website yang menyajikan berbagai denah dan desain rumah minimalis modern di Indonesia. Harapan kami Homeshabby.com menjadi website nomor 1 mengenai kumpulan desain dan denah rumah terlengkap di Indonesia. Selain denah dan desain rumah, Homeshabby.com juga memberikan inspirasi interior dan eksterior dekorasi rumah modern.

Bagi anda yang membutuhkan jasa desain rumah minimalis silahkan hubungi whatsapp 08568160677 atau klik www.hsdesain.com