Homeshabby.com -- Building a house certainly pays attention to several things including its facilities. The bedroom is one of the determinants of comfort. When presenting it as needed, of course, each child will have their own happiness for having their own bedroom.
This home design idea is equipped with 3 comfortable bedrooms for families. For details, check out 80 sqm Beautifully Designed for House with 3 Bedrooms.
House facade design
For
the facade, this house appears beautiful from the front with a wide
size that makes the house look magnificent. The soothing color
combination is kept in balance with the addition of a natural stone wall
and a fresh front garden. The more prominent area is the porch but with
a small size.
Roof design
The
roof design uses a skillion type with a wider top. The size also widens
which makes the house more shady. There is an additional hipped roof on
the porch so that it becomes an interesting variation on this house. In
addition, the owner can also add a fence that becomes a secure feature
for the house as a whole.
Living room design
The
living room design has a neat arrangement near the entrance with a
U-shaped layout. From the living room, you can also see the kitchen with
a white color that appears clean and neat.
Dining area design
The
dining area is located behind the living room with an additional wooden
partition that is not fully enclosed. The dining area has large windows
on both walls. For additional beautification, there is a chandelier
with a matching style.
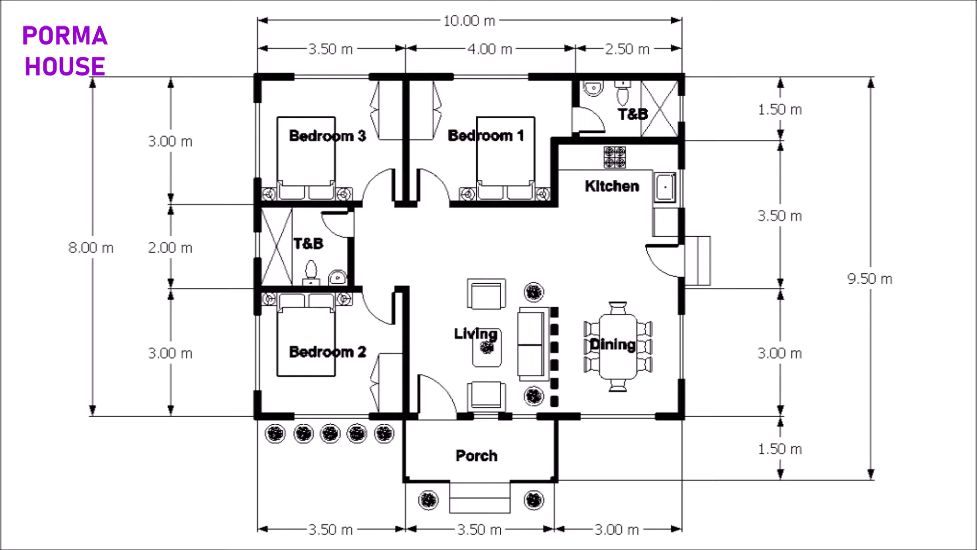
Floor plan design
For details, this 8 x 10 meter house has several rooms including a living area, dining area, kitchen, bathroom, and 3 bedrooms. The porch requires an additional area of about 1.5 x 3.5 meters. You can see the details of each size in the picture above.





