Homeshabby.com - The house that has a swimming pool and a beautiful front yard makes anyone feel at home. Not only that, with 3 bedrooms, of course, this residence is suitable for living in approximately a family of 5 people. For more details, let's look at the article below.
Outdoor
The courtyard looks stunning and has fun vibes. With the grass growing around, a swimming pool on one side, and pathways or a carport area on the other side.
Make sure to design the terrace after the courtyard nicely. Use the terrace for a chill spot or use it to receive guests who want to enjoy it.
Living room
Like most living rooms, you can design this area nicely. Add some wooden material or pallets as decoration or use them as partitions. It will enhance the living room even though an open-plan concept.
Bedroom
Create a window in the bedroom that will make good ventilation and circulation. And also install good curtains to make the dweller feel safe and protected.
Kitchen area
The kitchen and dining area are divided in two ways. One outdoors, and one again indoors. Try to use good design and arrangement for a stunning kitchen and dining area. So, it will make you and other people feel fun to enjoy cooking delicious meals.
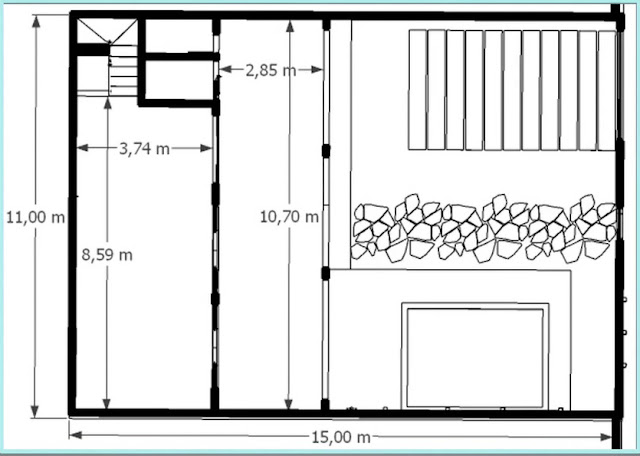
Floor plan
- carport
- swimming pool
- outdoor kitchen
- porch
- living room
- kitchen
- dining room
- bathroom
- 3 bedrooms
- bathroom







