![]() |
| Minimalist 2-Storey House Design with 3 Bedroom + Floor Plan Free |
Homeshabby.com -- This house design has a 2-story structure with a simple style. The application of color is not too much variation so that it gives a clean and neat impression. Color schemes like this will be more timeless.
Looking from the front, this house also has a cool and spacious outdoor space. At the bottom there is a carport with a capacity of 1 car and plenty of space left.
Roof design
To create a harmonious look, it will be very important to pay attention to many details on the house, one of which is the roof design used. The skillion to lead type roof structure will be the best combination for a neat yet attractive look because it has an elevation installation where one part is higher and the other part is lower.
Then, on the second floor there is also a spacious balcony with a minimalist railing that is perfect enough to make the area safe for the whole family to access.
Side view
Another important thing to consider is the comfort of the room based on the air it gets. Especially for houses with a small size, it is very important to have optimal air circulation.
This house design presents a lot of windows with a large size so that the room will not be stuffy and light can enter the house so that there is no damp and moldy room. Vertical or large window designs can make the house look more elegant and modern.
Interior details
![]() |
| Living room |
![]() |
| Dining area |
![]() |
![]() |
| Kitchen |
![]() |
| Bedroom |
![]() |
| Bathroom |
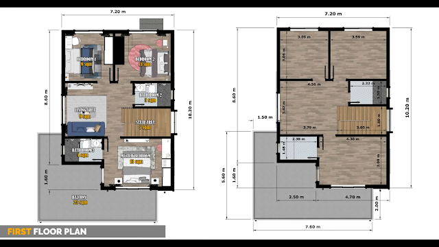
Floor plan details
![]() |
| Ground floor plan |
![]() |
| Upper floor plan |
![]() |
| Roof plan |











