Desain Rumah Kecil Ukuran 7 x 14 Meter 3 Interior Open Plan yang Lapang

Desain Rumah Kecil Ukuran 7 x 14 Meter 3 Interior Open Plan yang Lapang



Homeshabby.com -- Rumah kecil semakin banyak diminati banyak kalangan tidak hanya karena ukurannya yang kecil dan harganya yang cukup terajangkau. Namun rumah kecil karena desainnya relatif simple, bersih dan tampak stylish. Mulai dari eksterior fasad depan hingga menyeluruh, rumah minimalis tidak menampakkan detail yang banyak sehingga rumah tetap nyaman untuk diminati dan dihuni bagi keluarga kecil. 

Penataan interior pada rumah kecil pun bisa anda atur dengan seksama mementingkan area publik dan privasi secara bersamaan. Anda bisa menyimak detail ulasannya pada Desain Rumah Kecil Ukuran 7 x 14 Meter 3 Interior Open Plan yang Lapang di bawah ini:

Fasad rumah minimalis


Desain fasad rumah minimalis dengan eksterior putih bersih tanpa detail yang berlebih hanya diaplikasikan dengan vnetilasi maksimal untuk penghawaan. Begitupun area halaman rumah yang dibiarkan terbuka tanpa kanopi secara menyerluruh menjadikan rumah kecil ini terihat lapang sebagai akses. Pemilihan model pagar pun dikombinasikan dengan material batu bata dan pager besi vertikal untuk membiarkan rumah bisa terekspose dengan jelas.

Tampak sisi rumah tanpa pagar


Anda bisa memilih desain rumah dengan dua opsi. Tampilan sisi fasad rumah tanpa pagar kali ini dimaksudkan untuk membuat kesan lapang dan besar meski rumah berukuran 7 x 14 meter saja. Hanya dengan memperlihatkan detail taman di sisi samping rumah yang rindang, sangat fungisonal untuk resapan air dan membuat rumah jadi lebih menyegarkan. Perkerasan jalan dari material beton atau batu sikat di sekitar halaman bisa jadi salah satu ide menariknya untuk menghindari kesan licin saat musim penghujan tiba.


Detal fasad atap rumah


Menggunakan model atap limasan dan kanopi kaca di carport rumah, bentuk rumah yang kecil tetap terlihat seimabng dan dinamis. Model atap ini dipilih karena sangat membantu struktur bawahnya  terlindungi. Selain itu, atap limasan ini juga cocok untuk hunian di daerah tropis yang cuacanya tidak menentu. Akan membantu menghindari kebocoran karena model atap yang idealis. Anda cukup memilih material genteng yang kuat dan tahan lama seperti flat beton, aspal ataupun material lain yang direkomendasikan.

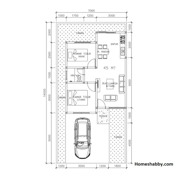
Pembagian ruangan pada rumah 7 x 14 m


Dengan lahan ukuran 7 x 14 meter, rumah ini tidak menghabisakan lahan secara keseluruhan untuk bangunan. Melainkan di sisakan untuk space mungil di sisi kanan kiri rumah, halaman dan area belakang sebagai penghawan. Seperti area depan rumah yang dijadikan carport dan taman serta teras, rumah ini teras menyejukkan meski ukurannya tidak terlalu besar.

Tata ruangnya tetap seperti rumah biasanya dengan menerapkan konsep open plan pada ruang tamu, ruang makan dan dapur. Serta memilihkan satu sisi banugng untuk area privasi kamar tidur dan kamar mandi. 



Detail ukuran ruang 


Dengan ukuran 7 x 14 m, rumah ini memiliki detail ukuran sebagai berikut:
- Carport ukuran 4.2 x 5 m
- Taman samping rumah ukuran 1.8 x 5.5 m dan teras mungil ukuran 1.2 x 1.5 m
- Ruang tamu atau ruang keluarga ukuran 3 x 5 m, ruang makan serta dapur ukuran 2.5 x 3 m
- Kamar tidur utama ukuran 3 x 3 m
- Kamar mandi ukuran 1.75 x 1.5 m
- Kamar tidur anak ukuran 3 x 3 m



Bagi anda yang menginginkan inspirasi desain dan denah rumah mulai sederhana hingga modern. Silahkan tinggalkan pesan dan komentar anda di facebook Rumah Shabby Minimalis.



Semoga artikel ini bermanfaat ya bagi anda yang sedang mencari inspirasi desain dan denah rumah.
Semoga anda dimudahkan rezekinya dalam membangun rumah idaman.
Jangan lupa dibagikan ke kerabat dan keluarga anda agar bermanfaat bagi yang lainnya.



Penulis  : Lynda
Editor    : Munawaroh
Sumber : Berbagai Sumber



Website Homeshabby.com adalah website yang menyajikan berbagai denah dan desain rumah minimalis modern di Indonesia. Harapan kami Homeshabby.com menjadi website nomor 1 mengenai kumpulan desain dan denah rumah terlengkap di Indonesia. Selain denah dan desain rumah, Homeshabby.com juga memberikan inspirasi interior dan eksterior dekorasi rumah modern.

Bagi anda yang membutuhkan jasa desain rumah minimalis silahkan hubungi whatsapp 08568160677 atau klik www.hsdesain.com